
完成見学会開催中!
随時予約を受付中です。
■時間:10:00~17:00(最終受付16:00)【雨天開催】
〇10:00 〇11:00 〇13:00 〇14:00 〇15:00 〇16:00
■場所:中央市 山之神
予約優先、現地開催となります。お気軽にお問い合わせください。
ご来場お待ちしております!
ご予約はこちら▼
※開催日以外の見学も受け付けております。お気軽にお問い合わせください。
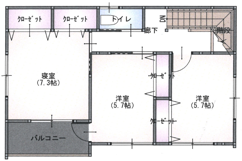
間取
4LDK
土地:186.39㎡ (56.38坪)
建物:99.91㎡ (30.22坪)
価格:3,300万円(税込)
現在予約有!
田富北小学校学区
イオンモール甲府昭和まで約1.6km(約5分)
オギノリバーシティまで約1.1km(約3分)
●オール電化(エコキュート・IH)
●カーテン・照明器具・リビングエアコン付き
●駐車場付き
シックな見た目からは、想像できない快適な住空間。
南向き角地で前や隣の景観の心配をする必要もありません。
ZEH基準クリア!省エネで生活費にゆとりが持てます。



]


[


2025年12月完成!
▼建築工程はリンクの現場レポートで見れますのでチェックしてみてください!

完成見学会開催中!
随時予約を受付中です。
■時間:10:00~17:00(最終受付16:00)【雨天開催】
〇10:00 〇11:00 〇13:00 〇14:00 〇15:00 〇16:00
■場所:中央市 山之神
予約優先、現地開催となります。お気軽にお問い合わせください。
ご予約はこちら▼
ご来場お待ちしております!
問合せ先はこちら